98.75㎡(29.87坪)・3LDK+ホビースペース
川内一丁目バス停 徒歩5分/アストラムライン中筋駅 徒歩14分








このお家にビビッ!!ときたら、安佐南不動産までお気軽にお問い合わせください。スタッフ一同、お待ちしております♪
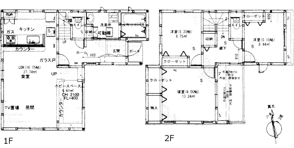
【間取り】

【住宅ローン返済例】
返済例①月々105,083円・ボーナス払い0円
返済例②月々88,185円・ボーナス払い101,500円
上記返済例は、頭金0万円、借入額3,980万円、変動金利0.6%、35年返済での試算です。(別途諸費用が必要です)
【物件概要】
所在/広島市安佐南区川内1丁目31
交通/川内1丁目バス停徒歩5分/アストラムライン中筋駅 徒歩14分
土地/100.97㎡(30.54坪)
建物/98.75㎡(29.87坪)
完成/令和7年4月
道路/私道 南東4m
駐車/2台可
用途地域/第一種住居
学区/川内小学校・城南中学校
取引態様/仲介
所在/広島市安佐南区川内1丁目31
交通/川内1丁目バス停徒歩5分/アストラムライン中筋駅 徒歩14分
土地/100.97㎡(30.54坪)
建物/98.75㎡(29.87坪)
完成/令和7年4月
道路/私道 南東4m
駐車/2台可
用途地域/第一種住居
学区/川内小学校・城南中学校
取引態様/仲介
