103.56㎡(31.32坪)・4LDK
JR七軒茶屋駅 徒歩5分
こんにちは!安佐南不動産です。

白を基調とした清潔感のある玄関。軒がかかっているので、雨が降っていても置き配や生協の宅配も濡れずに安心です。
おじゃまします

左・玄関は南向き。ドアを開けると、優しい色合いの木材と白をベースにした空間で温かみを感じました。南向きの玄関は風水的にとても良いとされています♪/右・玄関ホールには収納が充実していました。一つずつ見てみましょう。
土間収納&シューズボックス

左・姿見付きのシューズボックスには、傘を収納できるスペースがありました。/右・土間収納はベビーカーを収めておけるサイズ感。ボールやバッドなど、外で使うモノを収めると良さそう。
もう一つの収納スペース

上の段には外出時に必要なハンカチ&ティッシュ・マスク・帽子などを、下の段にはモップなどの掃除道具を収納すると◎充実した収納スペースで、玄関をスッキリと保つことができますね。
玄関横の洋室へ

6帖の洋室

二面採光で明るい洋室。風通しも良く、心地よいお部屋でした。

奥行のあるクローゼットも備わっています。
おかえり動線

洋室の隣は水回りスペース。『帰宅→洋室でアウターを脱ぐ→手洗い&うがい』のおかえり動線で、LDKに花粉やウイルスなどを持ち込まずに済みます。
水回りをご紹介

明るくゆったりとした洗面室。

洗面台には、お子さんが使いやすい低い位置に鏡が設置されていましたよ~。洗面台横は洗濯機置き場となります。
浴室

左・くるりと向きを変え浴室を見ていきましょう。/右・浴室乾燥機付きのバスルーム。浴室内の壁面はマグネットを使用でき、今流行りのマグネット収納で洗面器などを浮かせてみては♪
物干しスペース

水回りスペース奥には、収納棚+日当りの良い室内物干しスペースがありました。天候を気にせず衣類が干せること、そしてワンフロアで洗濯家事が完結できることで洗濯家事のストレスが減りそうですね♪
2階へあがりましょう
採光が最高な17.2帖のLDK♪

3方向から自然光が差し込み、朝からエネルギーに満ち溢れるサイコーなLDK!

角地+三面採光ならではの視界の広がりもプラスされ、開放感がありました。

正面の壁面にテレビを置くイメージです。
サイコーな1日が始まるダイニングスペース

ベランダに面したダイニングで朝日と元気を召し上がれ♪
ベランダ

日中はたっぷりの採光が期待できる南向きのベランダ。バスマットや厚手のものは、ベランダで日に当てて乾かすとサイコーの乾きが期待できそうです。
LDKに戻ってキッチンスペースへ

入口にはパントリーがありました。
パントリーcheck

程よい奥行きがあり、かさばるカップ麺やお菓子・パンなどの収納に適しています。下段には、飲料水などもマルっと収めることができそうでした。
キッチン

小窓があり明るいキッチン。左壁面手前から冷蔵庫・カップボードを置くイメージです。
キッチン装備

左上・掃除がしやすいIHクッキングヒーター。横に小窓があることで、キッチンにこもりがちな匂いを換気できます。/右上・家事を少し楽にしてくれる食洗機を完備。/下・収納豊富なシステムキッチン。奥の物も一目で見渡せ、取り出しやすい引き出し収納。
キッチンビュー

子ども達が遊んでいる姿を見守りながら家事ができますね♪
3階へ
セカンド洗面台がお出迎え


左・セカンド洗面台があることで、朝の支度時家族が1階と3階に分かれてスムーズに身だしなみを整えることができます。/右・洗面台横には、可動棚付きの収納スペースがあります。日用品のストックや掃除道具などの収納場所に。
3階は全3部屋
6.75帖の洋室


南と南東に窓がある明るいお部屋。朝日をたっぷり浴びて体内時計を整え、スッキリとした気持ちで一日がスタート!
5帖の洋室

南西の大きな窓と、北西の窓の2面採光。いびつな形のお部屋なので、家具の配置に少し悩みそう。

収納

ややコンパクトなサイズ。
最後に5.5帖の洋室


5.5帖の広さは、シングルベッド・机・キャビネットを置くことができますよ。外まわりをみてみましょう。
外観

室内と同じく、ナチュラルスタイルでまとめられたやさしい雰囲気。
駐車スペース

車種によりますが、3台停められます。
前面道路

前面道路は、南東約4m・公道 南西約5m。交通量が少ないので、落ち着いて駐車することが出来ます。
子育て環境

上・物件から徒歩2分の「八敷公園・緑井第八公園」(約100m)。すべり台付きの複合遊具や鉄棒がありました♪/左下・物件から近い保育園は「認定こども園みどり保育園」(約400m 徒歩5分)。/右下・学校区は「梅林小学校」(約1.5km 徒歩19分)。
周辺環境

左上・最寄り駅は「JR七軒茶屋駅」(約400m、徒歩5分)。駅近で通勤通学に便利です。/右上・JRの他には「七軒茶屋バス停」(約600m 徒歩7分)も利用することができます。/中・物件から一番近いスーパーは、お買い得な商品が多く並ぶ「万惣 緑井店」(約1.0km 徒歩13分)/下・映画館やフードコートが入る「フジグラン緑井店」(約1.0km 徒歩13分)も徒歩圏内の場所にあります。/右下・陸橋で繋がる「ラクア緑井店」には、大型アウトドアショップや絵本が豊富に揃う本屋さんもあり、家族でお買い物が楽しめます♪
このお家にビビッ!!ときたら、安佐南不動産までお気軽にお問い合わせください。スタッフ一同、お待ちしております♪
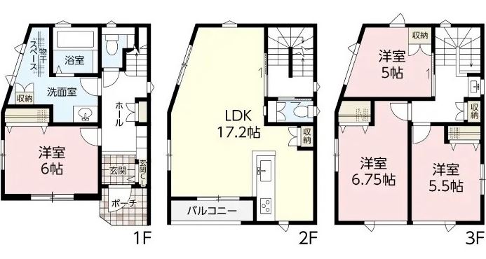
【間取り】

◎角地
◎日当り風通し良好
◎セカンド洗面台
◎玄関まわりの収納充実
◎室内物干しスペース
【気になった点】
△一部歪な形の間取り
【住宅ローン返済例】
返済例①月々92,357円・ボーナス払い0円
返済例②月々75,459円・ボーナス払い101,500円
上記返済例は、頭金0円、借入額3,498万円、変動金利0.6%、35年返済での試算です。
所在/広島市安佐南区緑井7丁目26
交通/JR七軒茶屋駅 徒歩5分
土地/92.72㎡(28.04坪)
建物/103.56㎡(31.32坪)
完成/令和7年1月
道路/南東約4m 公道 南西約5m
駐車/並列3台可(車種による)
用途地域/第2種中高層住
学区/梅林小学校・城山北中学校
取引態様/仲介