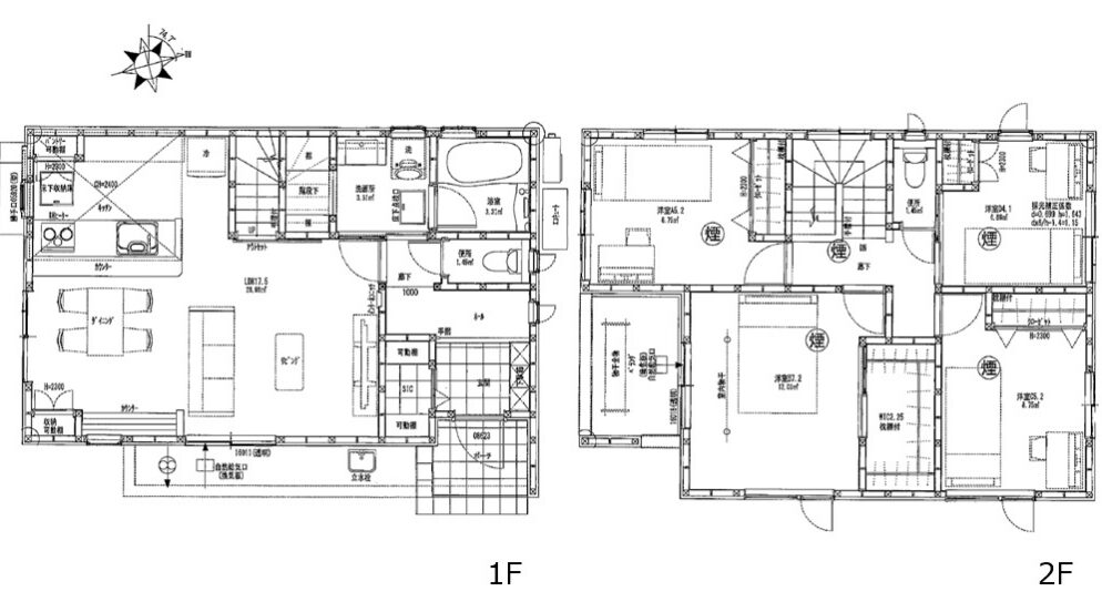
100.19㎡(30.30坪)・4LDK
JR可部線上八木駅 徒歩8分・太田川橋バス停 徒歩2分
玄関からスタート

左・宅配ボックス一体型郵便受け。宅配は置き配が主流になりつつあり、宅配ボックスが常設されていると受け取りがラクになりますね。/右・玄関入って左手には、シューズクロークがありました。
シューズクローク

長靴・自転車ヘルメットやアウトドアチェアーもマルっと収まります。棚の高さを変えて突っ張り棒を設置すれば、傘やレインコート・ショート丈のアウターもかけることが可能に!また正面壁面に、フック等を追加することで軽量かばんや帽子もスッキリ。
玄関廊下の先は水回り

リビングに入る前に洗面浴室があるこの間取りのメリットは、外からの汚れやウィルスをリビングに侵入させないよう最善の予防ができることです。手洗いうがい&汚れた衣類の着替えを済ませることで、リビング内が砂等で汚れる心配と掃除の手間も少なくて済みます。
洗面浴室

白を基調とした洗面室は、小窓からのあかりが白い壁に反射し、より明るい空間となっていました。
心に余白を生み出す収納スペース

洗面横には、可動棚が収納がありました。下着やタオル、洗剤等の日用品ストックを置いていただけます。

この動線は洗濯がラクになる予感♪洗濯機や浴室で衣類乾燥まで済ませた下着やタオル類を、収納棚のかごにポイっと放り込むだけの畳まない洗濯家事が叶いそうですよね。家事がラクになり、心に今よりも少し余白が生まれますように。
浴室

カビ抑制・衣類乾燥・入浴時暖房などの機能が付いた浴室。壁面にはマグネットがくっつくパネルが使用されており、流行りの浮かせる収納で掃除の回数を減らしちゃいましょう。
お待たせしました!LDKを見ていきましょう
17.5帖のLDK


外からのヒカリをしっかり取り込める明るいLDK。白と木目の内装で、より明るくスッキリとした印象を受けました。
リビング

シンプルな色味のLDKは、どんなテイストの家具も合わせやすく、雑貨等でカラーのプラスも楽しめそう。
ダイニング

ダイニングの掃き出し窓からもイイ感じに日が差し込みます。休日の朝はゆっくりと日を浴びながらモーニングコーヒーをどうぞ♪

カウンター

家事の合間にネイルを楽しんだり、推しのグッズを飾るのも良し‼テンションが上がる一角にしたいですね。お子さんの成長に合わせて、将来的にはスタディーカウンターとしてもお使いいただけます。
ダイニング収納

小物や日用雑貨が溢れかえるリビングダイニングには、必要不可欠な収納。爪切りや文房具などの家族みんなが使う日用雑貨は「ここ!」と家族で決めておくと、モノの迷子が無くなり探し物に時間を取られなくて済みますね。
キッチン


キッチン設備

ホットサンドメーカーやミキサーを使用する際に便利なコンセントが、作業スペースに設置してあります。子育て&仕事に忙しい方には、電気調理鍋の使用もおススメ!食材と調味料を入れてボタンを押しておくだけのほったらかし調理で、美味しいおかずが仕上がりますよ~♪
カップボード&パントリー収納

下段にゴミ箱スペースがありました。キッチン通路が広く確保できます。

リビング横の引き戸を開けると、階段がありました。2階へ上がってみましょう。
2階は全4部屋
7.2帖の主寝室

日当たりが良く、快適な洋室。室内にホスクリーンがあり、雨の日や取り込みの際に便利です。

角度を変えて。正面には、ウォークインクローゼットがありました。
2.25帖のウォークインクローゼット

衣類をたくさんかけることができるよう、コの字にハンガーパイプが設置されていました。衣類ケースの使用も可能な広さがあり、かける&畳むのダブル収納で、収納量を増やすことができます。

ウォークインクローゼットとバルコニーの距離は近く、バルコニーから取り込んだ衣類をサッとクローゼットへ収められ、家事の時短につながります。
3帖のインナーバルコニー

目の前に高い建物は無く、日当たり風の通りも良好なので衣類の乾きが良さそうでした。
5.2帖の洋室①


5.2帖の洋室②


4.1帖の洋室


コンパクトではありますが、シングルベッドを置ける広さがあります。趣味のお部屋やファミリークロークとしてもおススメの空間です。
外観

駐車場

車種によりますが、L字に2台駐車可能です。
お買い物後やお出かけ準備におススメ動線

駐車場横のキッチン勝手口から、荷物の搬入ができます。まずはお子さんと玄関から入り、その後勝手口より食品を運び入れることで冷蔵庫までの距離は最短に♪またお出かけの際は、お子さんのミルクや着替え等の重たいママカバンを事前に車に乗せておくことができるため、お子さんを抱えて重たいバッグを何個も持ってという体へ負担がグッと減りラクになりそうです。
コンパクトカー&自転車置き

お家の前にコンパクトカーを止めることができます。玄関前の道路で車を旋回できるので、ラクに車の出し入れができます。
周辺環境

左・JR可部線上八木駅へは、徒歩8分。/右上・太田川橋バス停へは、徒歩2分という近さです。/右下・学校区は八木小学校。(約850m 徒歩11分)

左上・JR可部線上八木駅の手前にセブンイレブンがあります。仕事帰りについつい立ち寄りたくなっちゃいそうですね♪/右上・八木小学校前にある、手作りパン屋PESCAさん。/左下・車で6分の場所には、ゆめマート八木店。西村ジョイや資さんうどん広島八木店もそばにあります。
このお家にビビッ!!ときたら、安佐南不動産までお気軽にお問い合わせください。スタッフ一同、お待ちしております♪
【間取り】

◎適材適所の収納
◎平地&バス停・駅が近い
◎生活動線良し!
◎日当たり良好
【気になった点】
△
【住宅ローン返済例】
返済例①月々84,225円・ボーナス払い0円
返済例②月々67,459円・ボーナス払い100,707円
上記返済例は、頭金0万円、借入額3,190万円、変動金利0.6%、35年返済での試算です。(別途諸費用が必要です)
所在/広島市安佐南区八木8丁目5
交通/JR可部線上八木駅 徒歩8分・太田川橋バス停 徒歩2分
土地/113.13㎡(34.22坪)
建物/100.19㎡(30.30坪)
完成/令和6年12月
道路/私道 東
駐車/
用途地域/第1種住居
学区/八木小学校・城山北中学校
取引態様/仲介
