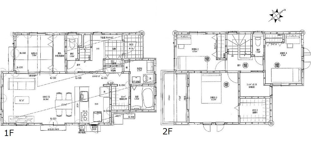
108.47㎡(32.81坪)・4LDK
JR上八木駅 徒歩10分/別所団地入口バス停 徒歩2分
Hellow、開放感!

南東向きで日当たり抜群の17.75帖のLDK。

お隣との距離が離れているので、開放感も抜群でした!

キッチン側を向いても広々~!といった印象。

家族みんなが同じ空間にいても、適度な距離感を保ちながらリラックスして過ごせそう。

テレビボードの位置は、右側の壁前に。いつもはそれぞれの場所で過ごす家族も、週末はリビングに全員集合してゲームや映画を楽しむ日常もいいですね♪

リビングの後ろには、日当たりのいい和室もありますよ。
4.5帖の和室

あたたかな陽だまりが、お昼寝に誘っているような和室。思わず、ごろんと寝ころんじゃいそうな心地よさです。

夏はサラッと、冬は冷えすぎない畳は、床と常に近い距離にいる赤ちゃんにとっても快適です。

引き戸を閉めたイメージはこんな感じ。窓から光が差し込むので、個室にしてもお部屋が薄暗くなることはナッシング!レースのカーテンやブラインドを取り付けると、畳の日焼けも防げそう。

壁一面、収納。

奥行きも幅も申し分のない広さの収納スペース。ハンガーパイプを取り付けて子供の洋服を収めたり、オムツやトイレットペーパーなど日用品の収納場所にしてもいいですね。収納ケースを中に設置し、書類や説明書、おもちゃなどを収めると空間がすっきりと整いますよ。
ダイニング

「朝日を感じながら朝食を食べられたら・・いいなぁ、最高だなぁ♪」なんて、素敵な一日のスタートを想像させてくれるダイニング。南東向きの掃き出し窓からは、きっと朝日が見えてくれる!と、わたしは期待しています!!
キッチン

勝手口から明るい光が差し込むキッチン。床には、2ℓのペットボトルを収納可能な深めの床下収納がありましたよ。

ダークブラウンで落ち着いたお色のキッチン。汚れも目立ちにくそう。
キッチンビュー

これまた開放感のある景色です!家族がリビング、ダイニング、和室でゆったりと心地よく過ごしている姿が見渡せます。

上・コンロはお手入れがラクなIHコンロ。火を使わないので、子供にもお手伝いをしてもらいやすいですよ。/下・毎日のお皿洗いをサポートしてくれる食洗機も完備です。冬場の手荒れも軽減しそう♪
キッチン収納

収納もこの通りたっぷり収納可能!フライパンやお鍋のフタなどを、ファイルボックスやブックエンドなどを活用し立てて収納すると、取り出しやすくノンストレス!
キッチン背面収納

キッチン背面の収納も収納力抜群です。ゴミ箱も収めることができるので、キッチン周りがスッキリと整います。
キッチン後ろの動線

キッチン左奥には、収納スペースと水回りがあります。まずは手前の収納スペースからチェックしてみましょう。
パントリー

奥行き浅めのパントリー。パスタや調味料のストックをサッと手に取ることができますね。在庫確認もしやすそう。
水回りへ

明るい洗面スペース。床には浅めの床下収納がありました。

天井には物干し金物も備え付けられていましたよ。洗濯後、シワをつけたくない洋服を一旦ここに吊るしておくことも出来ますね。換気扇も完備です。
洗面正面には可動棚

洗面スペースには、タオルや洗剤などの日用品を収めておける、奥行き浅めの可動棚がありました。
浴室

浴室乾燥機付きの浴室。雨の多い季節には洗濯物を乾かしたり、寒い季節には入浴前に浴室をあたためておくことができます。
水回りとキッチンの間

水回りとキッチンの間には、家族の支度がスムーズに進められそうなスペースがありましたよ~。
ストレージルーム

約1.5帖のストレージルーム。ここに制服やパジャマ、部屋着を収納しておけば、洗顔・手洗い・入浴の前後に洋服を手に取ったり、着替えたりすることができ便利!

エコバックや普段使いするカバンなども置いておけば、軽やか~に外出できそう♪
LDKを出て2階へ

8帖の洋室

シングルベッド2台置けるサイズ感の洋室。

日当たりもGood!朝もすっきりと目覚められそう。

WIC

2.5帖のコの字型のウォークインクローゼット。ご夫婦の洋服やカバンなどがたっぷりと収まりますように。
バルコニーへ

最高の開放感!ナイスビューでした♪広島インター方面へと続く国道もみえますよ。見学される際は、現地に行かないとわからない音などもチェックしてみてくださいね。

ベランダの日当たりはバッチリでしたよ!

5.4帖の洋室


北東に位置するお部屋ですが、暗い印象はありませんでした。収納スペースには奥行きがあり、衣装ケースも収めやすそうでした。
5.2帖洋室

日当たりのいい洋室。

姿見がついているので、洋服選びもしやすいですね。
もう一部屋!

生活をしていると、どうしても増えていくあらゆるモノたち。「スペースがないから、捨てたくないけど断捨離しなきゃなのかな・・」なんて心配もご無用なスペースをご紹介しますね♪
2.25帖のフリースペース

家族の衣替えの洋服やお布団、季節家電の収納場所によさそうなスペース。衣装ケースや棚などを設置すると、収納力がグーンっと上がりそうですね!

どの洋室からも、階段からも近いので、モノの出し入れがラクにできそうでした。
1階へ降りて玄関へ

玄関は階段奥にあります。進んでみましょう。
玄関収納

玄関ドアすぐ隣には、天井まで伸びる収納がありました。
OPEN!

収納の奥行きは浅め。可動棚の高さを変えれば、長ぐつや傘なども収まります。

収納の反対側には、靴箱もありました。高さが低いので、子供も自分で靴の出し入れがしやすそう。手前には来客用のスリッパを収めておけそうですね。
おじゃましました

「いってきます、ただいま~!」と毎日軽やかに出発&帰宅ができますように♪
お庭へ

物件左端のスペースを通ってお庭へ進んでみましょう!

日当たりのいいお庭。家庭菜園を楽しんだり、人工芝を敷いてメンテナンスがラクなお庭にしてもいいですね。勝手口から玄関・駐車スペースへ出やすいので、ゴミ出しもラクにできそう。
建物外観

シンプルで落ち着いた外観。3棟新築が並んでいるのですが、一番奥の物件になります。
駐車スペース

車は2台駐車可能です。
前面道路

上・方向転換するスペースがあるので、直進で侵入しても無理なく駐車できそうでした。また、物件前の道路は私道なので、落ち着いて駐車することもできます。/下・手前に見える道路が公道になります。公道の幅は4mです。
周辺環境

左上下・最寄りのバス停は「別所団地入口バス停」(約160m 徒歩2分)。物件からとっても近い距離感です。広島バスセンターまで向かうバスが停まりますよ。※バスはバス停とは反対側の車線に停まるので、乗車の際はご注意ください。/右・「JR上八木駅」(約800m 徒歩10分)も徒歩圏内ですよ。

上・最寄りのスーパーは「ゆめマート八木店」(約1.3km 車4分)。/中・スーパーのすぐ隣には「西村ジョイ八木店」(約1.3km 車4分)もありますよ。DIY用品やアウトドア用品、日用品や園芸用品などなど品揃えが豊富なので、週末はつい立ち寄ってしまうかも♪/左下・小学校区は「八木小学校」(約800m 徒歩10分)。/右下・物件は一番近い公園は「別所公園」(約230m 徒歩3分)。すべり台やブランコが揃う広めの公園です。
このお家にビビッ!!ときたら、安佐南不動産までお気軽にお問い合わせください。スタッフ一同、お待ちしております♪
【間取り】

◎開放感のあるLDK
◎日当たり抜群
◎収納豊富
【気になった点】
△窓を開けた時の音
【住宅ローン返済例】
返済例①月々86,601円・ボーナス払い0円
返済例②月々69,703円・ボーナス払い101,500円
上記返済例は、頭金0万円、借入額3,280万円、変動金利0.6%、35年返済での試算です。(別途諸費用が必要です)
所在/広島市安佐南区八木6丁目2
交通/JR上八木駅 徒歩10分・別所団地入口 バス停徒歩2分
土地/267.87㎡(81.03坪)
建物/108.47㎡(32.81坪)
完成/令和7年5月
道路/公道 北西4m
駐車/
用途地域/第1種住居
学区/八木小学校・城山北中学校
取引態様/仲介
